Casa CD
Un nuovo volto per un appartamento anni ’60 in zona Parco 2 Giugno, Bari
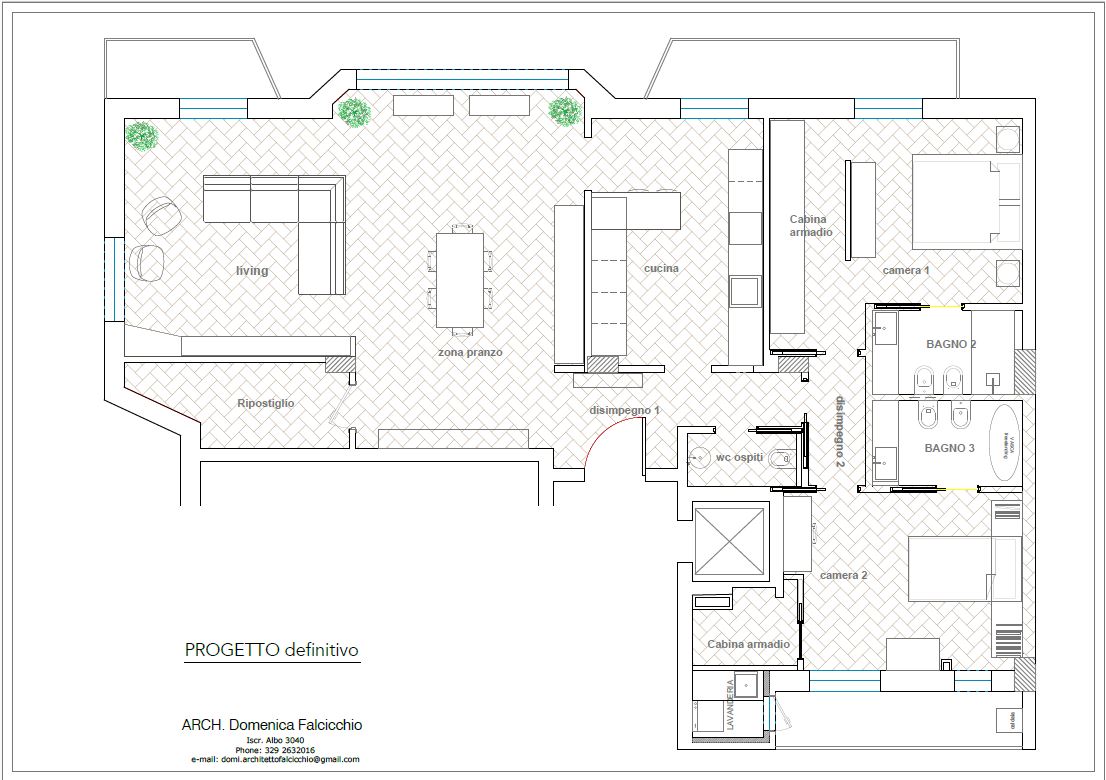
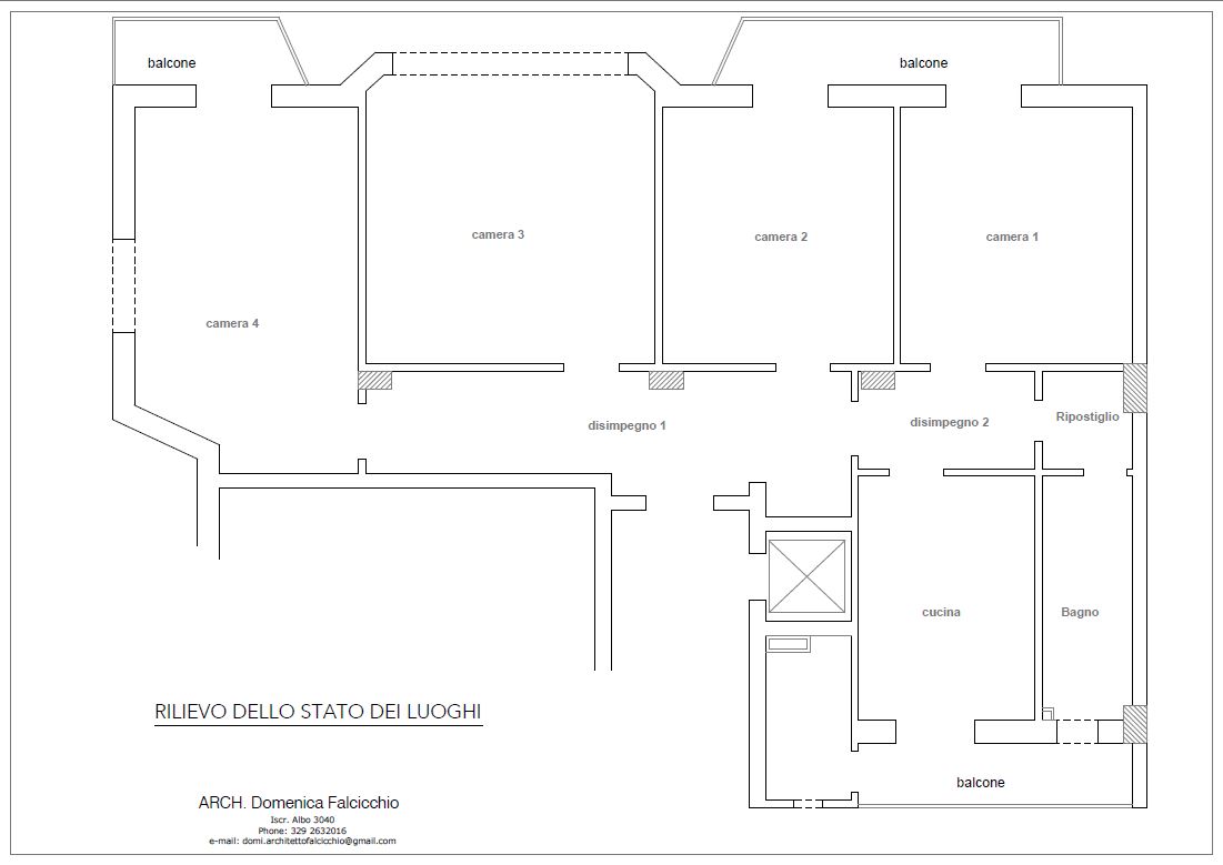
Un intervento di ristrutturazione integrale per un appartamento di 160 mq situato al secondo piano di una palazzina degli anni ’60.
L’abitazione si presentava inizialmente con ambienti bui e poco funzionali: un ingresso angusto, un lungo corridoio, stanze disarmoniche, cucina appartata e un solo bagno collocato in fondo al corridoio, lontano dalle camere.
Il progetto ha completamente ribaltato la distribuzione interna, puntando sulla luce, la fluidità e il comfort contemporaneo. Abbiamo aperto gli spazi demolendo i tramezzi, così da accogliere chi entra in un ampio e luminoso living open space, cuore pulsante della casa insieme alla cucina che, pur rimanendo uno spazio separato, dialoga visivamente con il resto dell’ambiente grazie a due eleganti vetrate a tutta altezza realizzate su misura da un artigiano locale in finitura semiriflettente che lascia intravedere gli spazi, senza però palesarli.
Nella zona disimpegno, una porta scorrevole filomuro ci fa entrare in un originale bagno ospiti che si distingue per il suo carattere deciso: pareti e soffitto rivestiti con carta da parati donano un effetto “scatola”, completato da sanitari in blu intenso per un mood stiloso, avvolgente e inatteso.
Attraverso un’altra porta si accede all’area più privata della casa: due camere da letto-suite dotate di bagno privato e cabina armadio, pensate per offrire funzionalità e benessere quotidiano.
Il progetto è stato valorizzato da porte filomuro e impianti tecnologicamente avanzati, in un perfetto equilibrio tra estetica e innovazione.
